Квартирные станции VALTEC Control Modul

Уважаемые читатели! С момента публикации статей этого раздела в ассортименте нашей компании, практике применения оборудования, нормативных документах могли произойти изменения. Предлагаемая вам информация полезна, однако носит исключительно ознакомительный характер.

 

Сегодня программы энергосбережения принимают масштабный характер и государственное значение. Все больше организаций стремится разрабатывать и внедрять высокоэффективные продукты. Экономия всех видов энергоресурсов становится приоритетной задачей государства. Нужно отметить, что экономия в данном понимании – это не тривиальное и бездумное уменьшение потребления ресурсов, а их рациональное и, главное, эффективное использование.

Федеральным законом № 261-ФЗ «Об энергосбережении и о повышении энергетической эффективности и о внесении изменений в отдельные законодательные акты РФ» от 23 ноября 2009 г. введены следующие положения:

  • Не допускается ввод в эксплуатацию зданий, строений, сооружений, построенных, реконструированных, прошедших капитальный ремонт и не соответствующих требованиям энергетической эффективности и требованиям оснащенности их приборами учета используемых энергетических ресурсов.
  • Застройщики обязаны обеспечить соответствие зданий, строений, сооружений требованиям энергетической эффективности и требованиям оснащенности их приборами учета используемых энергетических ресурсов путем выбора оптимальных архитектурных, функционально-технологических, конструктивных и инженерно-технических решений и их надлежащей реализации при осуществлении строительства, реконструкции, капитального ремонта.
  • Расчеты за энергетические ресурсы должны осуществляться на основании данных о количественном значении энергетических ресурсов, произведенных, переданных, потребленных, определенных при помощи приборов учета используемых энергетических ресурсов.

Данный закон в сочетании с Постановлением Правительства РФ № 307 «О порядке предоставления коммунальных услуг гражданам» от 23 мая 2006 г. и в ближайшее время заменяющим его Постановлением № 354 «О предоставлении коммунальных услуг собственникам и пользователям помещений в многоквартирных домах и жилых домов» от 6 мая 2011 г. стимулируют потребителей к использованию индивидуальных приборов учета, дающих возможность оплачивать только потребляемые ресурсы.

Уже на протяжении многих лет население платит только за потребленную электроэнергию, а с недавнего времени – и за воду. Повышение популярности индивидуальных приборов учета вызвано множеством факторов, главный из которых – нежелание оплачивать коммунальные услуги ненадлежащего качества.

С тепловой же энергией дела обстоят иначе. Её учет в многоквартирных жилых домах осуществляется общедомовыми приборами, и все жильцы платят одинаково, не зависимо от того, обеспечиваются ли санитарно-гигиенические требования к температуре воздуха в их квартирах или нет, пользовался ли потребитель отоплением весь месяц, или же он отсутствовал все это время. Тарифы на коммунальные услуги повышаются из года в год, а качество их предоставления остается на прежнем уровне. Плата же за отопление является преобладающей долей стоимости коммунальных услуг, поэтому необходимо искать решение задачи организации поквартирного учета тепловой энергии.

Преобладающая часть систем отопления многоквартирных жилых домов – это однотрубные системы стоякового типа с верхней или нижней подачей теплоносителя (рис. 1 и 2 соответственно) с различными типами подключения приборов. В силу быстроты монтажа и дешевизны они получили широкое распространение.

 

Рис. 1. Однотрубная система отопления с верхней подачей теплоносителя

 

 

Рис. 2. Однотрубная система отопления с нижней подачей теплоносителя

 

Сегодня в новом строительстве в основном применяются двухтрубные системы отопления, но опять же стоякового типа (рис. 3).

 

Рис. 3. Двухтрубная система отопления с нижней подачей теплоносителя

 

Однако и одно-, и двухтрубные системы при стояковом принципе проектирования затрудняют учет теплоты. Рассмотрим на примере 3-комнатной квартиры типового многоэтажного здания с однотрубной системой стоякового типа (рис. 4).

 

Рис. 4. Частичный план системы отопления жилого многоквартирного здания

 

Из рис. 4 видно, что в квартире проходит четыре стояка. Это значит, что для организации учета тепловой энергии в данной квартире необходимо четыре теплосчетчика. Кроме того, необходимо обеспечить измерение температуры теплоносителя до и после отопительного прибора на каждом стояке. Затем показания потребленной тепловой энергии необходимо суммировать по всем стоякам с использованием вычислительной автоматики. Такой способ организации учета тепла неоправданно дорогой и сложный.

Одним из выходов в сложившейся ситуации стали распределители тепла – испарительные или электронные, устанавливаемые на каждый отопительный прибор. Данные измерений собираются со всех распределителей тепла один раз в год (после отопительного сезона), подаются в специализированную организацию, где вносятся в компьютер и обрабатываются специальной программой, на выходе которой – доля каждой квартиры в общедомовом потреблении теплоты и ее стоимостное выражение. Практический опыт применения такой системы выявил высокую погрешность измерений – порядка 30–70 % и факты вмешательства в работу приборов потребителей: они заклеивают отверстия, накрывают распределители различными кожухами и т.д. Это дискредитирует данное техническое решение, несмотря на его дешевизну.

Согласно п. 7 вышеупомянутого Федерального закона (№ 261-ФЗ), многоквартирные дома, вводимые в эксплуатацию с 1 января 2012 г. после осуществления строительства, реконструкции, должны быть оснащены дополнительно индивидуальными приборами учета используемой тепловой энергии, а многоквартирные дома, вводимые в эксплуатацию с 1 января 2012 г. после капитального ремонта, должны быть оснащены индивидуальными приборами учета используемой тепловой энергии при наличии технической возможности их установки.

Для организации поквартирного учета энергоресурсов торговая марка VALTEC предлагает квартирные станции VALTEC Control Modul (рис. 5).

 

Рис. 5. Квартирная станция VALTEC Control Modul

 

Квартирные станции VALTEC – это блок-модульные комплексы нового поколения, адаптированные к интеграции в автоматизированные системы дистанционной передачи данных учета стандарта M-Bus и обеспечивающие настройку оптимальных параметров потребляемых ресурсов. Квартирная станция является экономически эффективной системой энергоучета. Учет расходов воды на горячее и холодное водоснабжение, тепловой энергии на систему отопления (а в модели Control Sat – и на приготовление ГВС) обеспечивается счетчиками c импульсным выходом. Результаты измерений передаются на пульт диспетчера ресурсоснабжающей организации в режиме реального времени по сетям M-Bus (современный стандарт построения систем сбора данных коммерческого учета).

В жилых зданиях, оборудованных квартирными станциями VALTEC, реализуется автоматический процесс сбора и предварительной обработки больших массивов информации, полученной с большого количества квартир, что существенно снижает организационные затраты на реализацию программ энергосбережения.

Габаритные размеры станции позволяют размещать её внутри санузла или за пределами его – в зависимости от размещения магистральных трубопроводов и архитектуры здания.

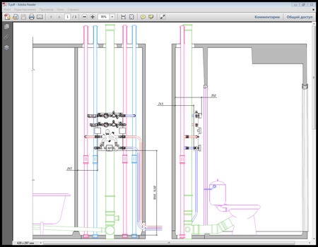
На рис. 6 и 7 показаны примеры подключения станции в пространстве сантехкабины с рециркуляционным трубопроводом ГВС.

 

Рис. 6. Подключение станции VALTEC Control Modul в плане

 

 

Рис. 7. Подключение станции VALTEC Control Modul в разрезе

 

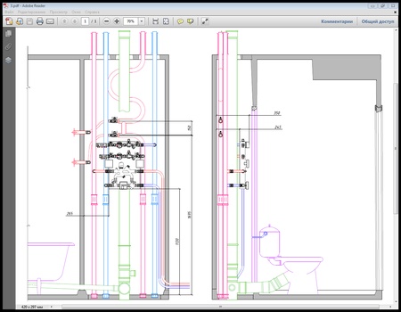
На рис. 8 и 9 показаны примеры подключения станции в пространстве сантехкабины без рециркуляционного трубопровода ГВС.

 

Рис. 8. Подключение станции VALTEC Control Modul в плане

 

 

Рис. 9. Подключение станции VALTEC Control Modul в разрезе

 

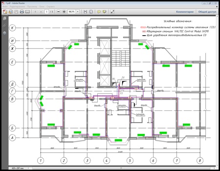
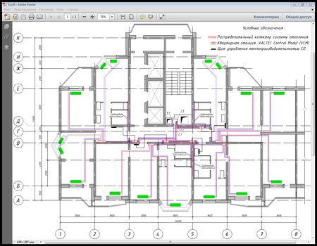
Использование квартирных станций VALTEC позволяет применять лучевую и плинтусную разводки систем отопления. Пример использования квартирных станций, вынесенных за пределы жилых помещений с применением системы отопления с лучевой разводкой, показан на рис. 10, а с плинтусной разводкой – на рис. 11.

 

Рис. 10. Станции VALTEC Control Modul на объекте с лучевой разводкой системы отопления

 

Квартирные станции расположены на этажной площадке у стен. Здание обслуживается всего четырьмя магистральными трубопроводами: Т1, Т2, В1, Т3. Система отопления может быть с коллекторным подключением или без него. Аналогичный вариант возможен и при размещении станций в сантехкабине.

 

Рис. 11. Станции VALTEC Control Modul на объекте с плинтусной разводкой системы отопления

 

В данных примерах разместить станции можно было и в пространстве сантехкабины, однако это увеличило бы количество магистральных трубопроводов в четыре раза и размыло бы границу разделения ответственности.

Одной из наиболее важных особенностей станции является её адаптированность к сетям стандарта M-Bus. Рассмотрим на примере 5-этажного здания с четырьмя квартирами на каждом этаже (рис. 12).

 

Рис. 12. Здание, оснащенное квартирными станциями VALTEC Control Modul»

 

Вне зависимости от размещения станций в здании структура сбора данных выглядит следующим образом (рис. 13).

 

Рис. 13. Структура сбора данных по сети стандарта M-Bus

 

Все станции в здании соединены параллельно по двухпроводной шине M-Bus. В подвале или подъезде в специальной технологической нише устанавливается концентратор, на который поступают данные со всех станций. Считывание показаний производится в двух режимах:

  • в штатном режиме показания с концентратора передаются на пульт диспетчера ресурсоснабжающей организации посредством проводных или беспроводных коммуникаций (Интернет и телефонные сети, GSM);
  • во внештатном режиме считывание показаний осуществляется непосредственно на концентраторе или через прямое подключение к мобильному ПК.

Помимо приборов учета, к данной сети можно подключать датчики температуры, давления, уровня, наличия дыма в помещении и т.п.

В настоящий момент квартирная станция VALTEC Control Modul представлена шестью моделями, основные характеристики которых приведены в таблице.

Таблица. Характеристики квартирных станций VALTEC Control Modul

Характеристика

Ед. изм.

Значение

Модель VALTEC Control Modul S

Типоразмер

½

¾

1

Ном. расход модуля ГВС (макс.)

м3

1,5 (2,1)

2,5 (3,0)

2

Ном. расход модуля ХВС (макс.)

м3

1,5 (2,1)

2,5 (3,0)

3

Ном. расход модуля СО

м3

0,6

4

Теплопроизводительность гидравлического модуля СО при Δt=20°С

кВт

7,0*

5

Теплопроизводительность гидравлического модуля СО при Δt=25°С

кВт

8,7*

6

Диаметр подключения модулей ГВС и ХВС

дюйм

½

¾

7

Диаметр подключения гидравлического модуля СО

дюйм

¾

¾

Модель VALTEC Control Modul M

Типоразмер

½

¾

1

Ном. расход модуля ГВС (макс.)

м3

1,5 (2,1)

2,5 (3,0)

2

Ном. расход модуля ХВС (макс.)

м3

1,5 (2,1)

2,5 (3,0)

3

Ном. расход модуля СО

м3

1,5

4

Теплопроизводительность гидравлического модуля СО при Δt=20°С

кВт

17,5*

5

Теплопроизводительность гидравлического модуля СО при Δt=25°С

кВт

21,8*

6

Диаметр подключения модулей ГВС и ХВС

дюйм

½

¾

7

Диаметр подключения гидравлического модуля СО

дюйм

¾

¾

Модель VALTEC Control Modul L

Типоразмер

½

¾

1

Ном. расход модуля ГВС (макс.)

м3

1,5 (2,1)

2,5 (3,0)

2

Ном. расход модуля ХВС (макс.)

м3

1,5 (2,1)

2,5 (3,0)

3

Ном. расход модуля СО

м3

2,5

4

Теплопроизводительность гидравлического модуля СО при Δt=20°С

кВт

29,1*

5

Теплопроизводительность гидравлического модуля СО при Δt=25°С

кВт

36,4*

6

Диаметр подключения модулей ГВС и ХВС

дюйм

½

¾

7

Диаметр подключения гидравлического модуля СО

дюйм

¾

¾

* - из условия допустимых потерь давления на теплосчетчике.



В сочетании с поквартирными системам отопления (плинтусными или лучевыми) станции VALTEC Control Modul позволяют:

  • вести учет потребления энергоресурсов на системы отопления, ГВС, ХВС не только визуальным методом, но и дистанционно по сетям передачи данных стандарта M-Bus;
  • осуществлять ручное или автоматическое регулирование теплопроизводительности системы отопления с сохранением тепловой и гидравлической устойчивости системы здания;
  • регулировать температуру ГВС в соответствии с индивидуальными потребностями собственников жилья;
  • производить полное отключение системы отопления в отдельно взятой квартире для устранения аварий или реконструкции системы, не влияя на других потребителей;
  • в случаях расположения станций вне жилого помещения (коридоры, поэтажные технические помещения и т.д.) осуществлять беспрепятственный доступ ремонтно-эксплуатационного персонала к приборам учета;
  • выбирать предпочитаемый тип системы отопления (радиаторное, теплые полы и т.д.);
  • снизить энергопотребление квартиры и здания в целом;
  • сократить длину трубной разводки для снабжения здания необходимо всего лишь три магистральных трубопровода (Т1, Т2, В1);
  • упростить оборудование общедомового ИТП;
  • снизить затраты на снятие и обработку показаний;
  • сократить время на монтаж и испытания систем отопления на стадии строительства и, как следствие, ускорить внутриквартирные строительные работы, что в итоге снизит накладные расходы;
  • организовать эффективный процесс сбора и передачи данных коммерческого учета;
  • оплачивать фактически потребленные ресурсы.

Пилотные проекты показывают, что замена старой системы отопления на поквартирную с использованием квартирных станций окупаются в худшем случае за три–четыре года.

Статья подготовлена техническим отделом VALTEC



Изучить технический паспорт на квартирные станции VALTEC Control Modul можно в разделе Поддержка / Техническая документация.

Цены на оборудование указаны в прайсе.